Zadávací dokumentace

Zadávací řízení: Oprava místnosti - Kavárna

Informace o dokumentu

Název: Doplnění 1
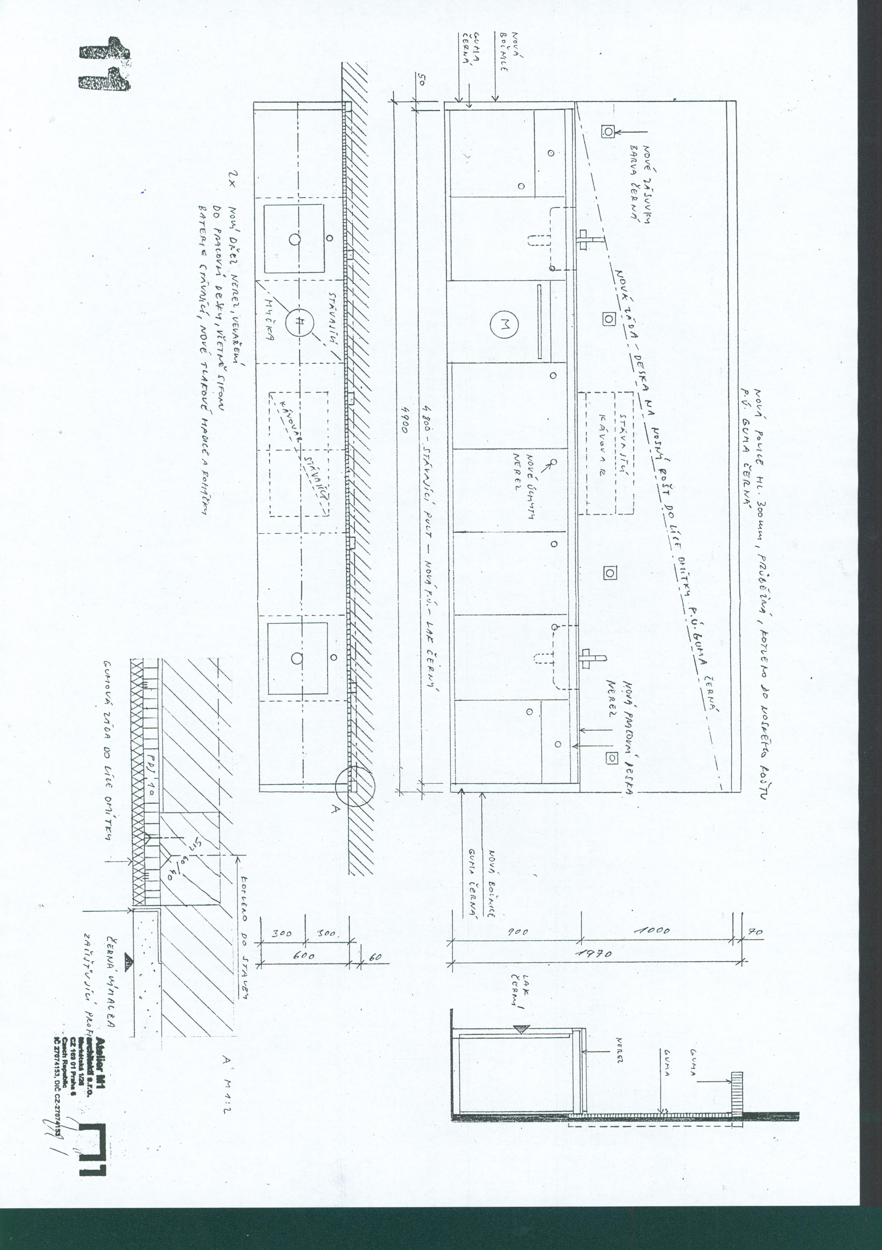
Popis: Výkres barového pultu_1

Aktuální verze souboru

Jméno souboru: Obrázek JPEG barovy pult_1.jpg
Velikost: 1,34 MiB
Aktuální verze souboru: 21.10.2020 16:05:32
Otisk MD5: e6019c75427f21b7057a8ae9ee02011b
Otisk SHA256: cd0157a013a25edd8fe80950490c45fb5548a97eda7be1cb8e9ea4d81a8cbcba

Historie souboru

Datum Název Popis Typ dokumentu Jméno souboru Velikost
V 21.10.2020 16:05:32 Doplnění 1 Výkres barového pultu_1 zadávací dokumentace - barovy pult_1.jpg 1,34 MiB