Přijatá zpráva - vysvětlení, doplnění, změna dokumentace

Zadávací řízení Dodávka CNC CO2 laseru a Stohové řezačky
Odesílatel Hedvika Poláčková
Organizace odesílatele Střední škola designu Lysá nad Labem, příspěvková organizace [IČO: 00663565]
Příjemce Všichni (včetně veřejnosti)
Datum 26.03.2026 13:50:58
Předmět Vysvětlení / Doplnění / Změna zadávací dokumentace č.1

Vážení,

zadavatel Vám tímto oznamuje Vysvětlení/Doplnění/Změnu zadávací dokumentace:

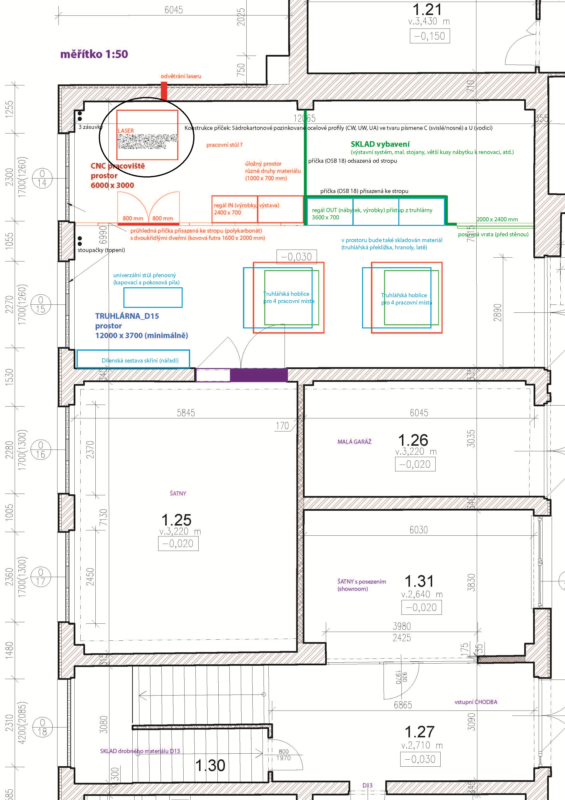
Dotaz: jaký je přístup pro instalaci strojů, zda-li se bude instalovat někam do patra, případně jestli jsou v budově nějaká omezení, která by zabraňovali volnému průjezdu strojů, tak aby se nemuseli rozebírat a znovu skládat, případně poprosím nějaké foto či plánek s popisem

Odpověď:

CNC i řezačka budou umístěny v přízemí. K upřesnění je přiložen plán přízemí s rozměry vstupních otvorů.
Pro umístění CNC není potřeba překonávat žádný schod. Na plánku barevně vyznačené vybavení není, jde o budoucí stav, nepřekáží tudíž v cestě. Odvětrání bude přes průraz ve zdi.
Řezačka bude umístěna v místnosti 1.05, limitujícím faktorem mohou být dveře a jeden vyšší schod do chodby (mezi 1.07 a 1.02) umístěné před učebnou. Viz výkres.


Přílohy
- Anonymizovany_U_DRAHY_101 PŮDORYS 1NP.pdf (625,39 KiB)
- Anonymizovany_U_DRAHY_101 PŮDORYS 1NP.jpg (925,47 KiB)
- Umístění Laseru _Velká garáž_D15.pdf (126,87 KiB)
- Umístění Laseru _Velká garáž_D15.jpg (1,31 MiB)